
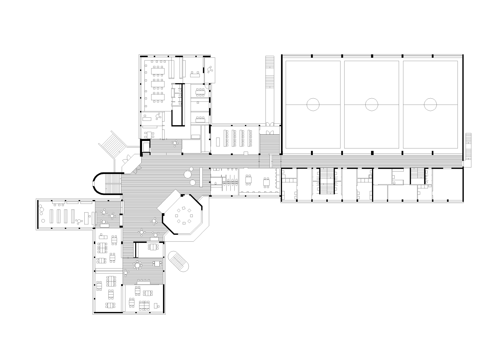
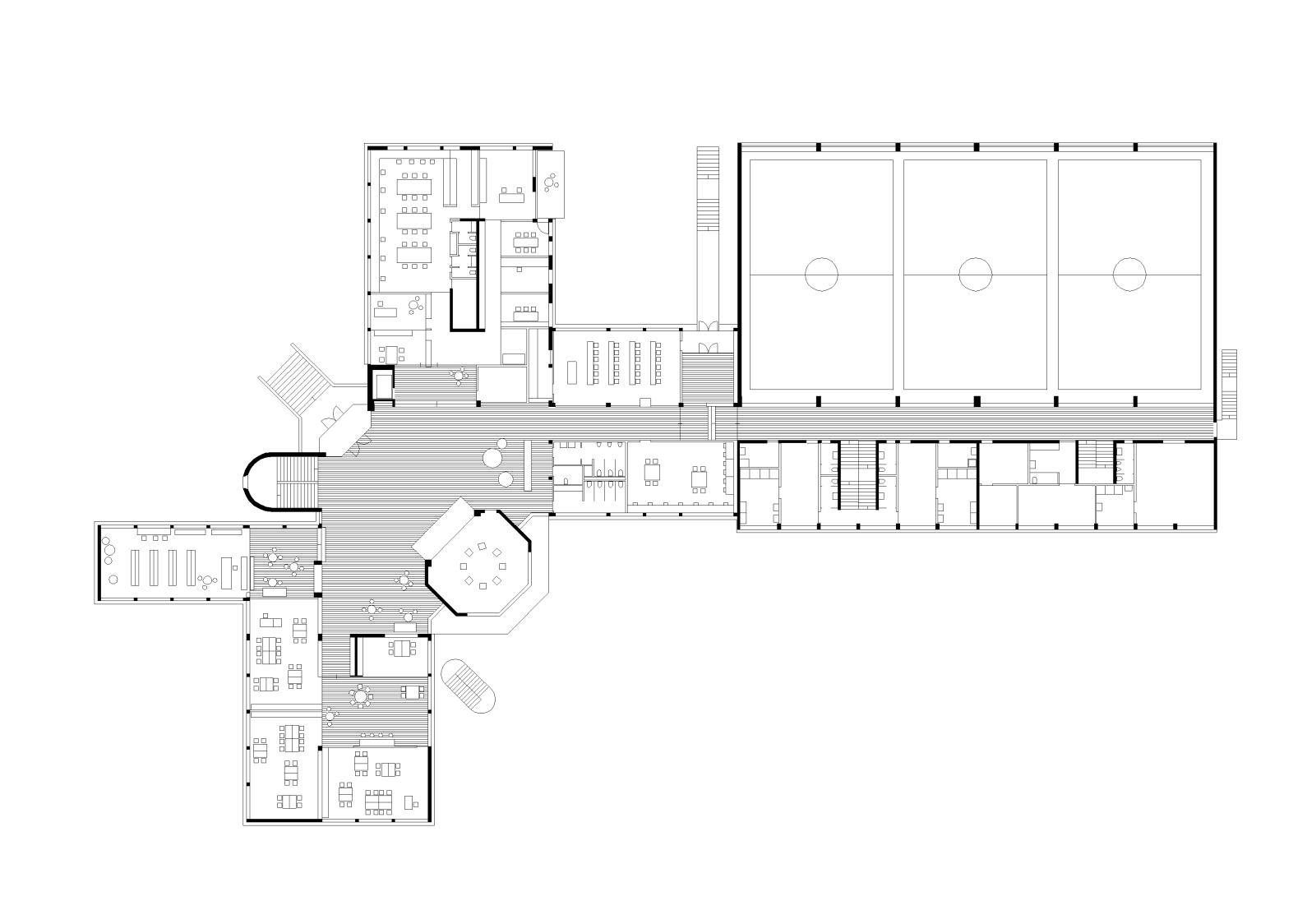
Sanierung Mittelschule Mittelweiherburg
Das Anfang der 70er Jahre von Werner Pfeifer entworfene und von seinem Nachfolgebüro realisierte Schulgebäude spiegelt in exemplarischer Weise die Entwicklungen in Schulbau und Architektur dieser Zeit wieder.
Auslösendes Moment für die Entwicklungen im Schulbau der Sechziger und Siebzigerjahre war das neue Österreichische Schulorganisationsgesetz aus dem Jahr 1962. Es verlängerte die allgemeine Schulpflicht auf neun Jahre und reduzierte die Klassenschülerhöchstzahl, in weiterer Folge sollte in jedem politischem Bezirk eine zur Matura führende Schule errichtet werden. Um diese gesellschaftspolitische und egalitäre Forderung zu erfüllen, die sich in Pädagogik und Raum manifestieren sollte, wurde die „Studiengemeinschaft Vorfertigung im Schulbau“ der Architekten Franz Kiener, Ferdinand Kitt, Fritz Gerhard Mayr, Herbert Turnher, Ottokar Uhl und Viktor Hufnagel beauftragt, technische und wirtschaftliche Grundlagen für den zur Umsetzung der Forderungen notwendigen Schulbau zu entwickeln. In Folge entstanden einige Modellschulen, die vor allem dem bis dahin in Österreich unbekannten Schultyp der Hallenschule folgten. Daneben waren vor allem Vorfertigung, Rastersysteme und flexible Raummodelle Gegenstand der Forschung.
Charakter und Duktus der Schule in der Mittelweiherburg werden im Wesentlichen übernommen und weitergeführt, die vorhandenen Qualitäten der Schule bilden eine gute Basis für die aktuellen inhaltlich/pädagogische Weiterentwicklungen. Wesentliche Elemente aktueller Pädagogik sind im Bestandsbau angelegt - nach fast fünfzig Jahren kommt die Pädagogik auf Augenhöhe mit dem theoretischen Überbau des Schulbaus der Sechziger- und Siebzigerjahre.
Netzwerk
- Auftraggeberin: Gemeinde Hard
- Fotografie: David Schreyer, Petra Rainer
- Farbgestaltung: Monika Heiss