
Sanierung eines Wirtschaftsgebäudes
Die Umnutzung alter Wirtschaftsgebäude im Bregenzerwald ist aufgrund der strukturellen Veränderungen in der Landwirtschaft ein wesentlicher Beitrag zur Erhaltung der traditionell gewachsenen Kulturlandschaft. Das Verständnis der funktionalen Logik dieser Gebäude ist Grundlage für deren Neuinterpretation.
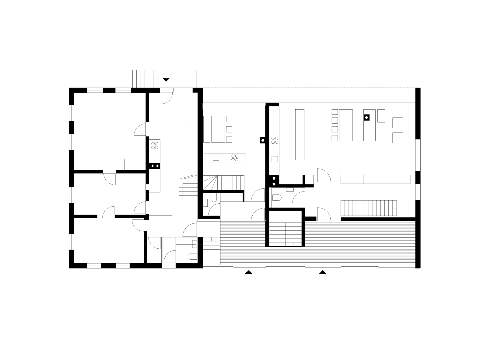
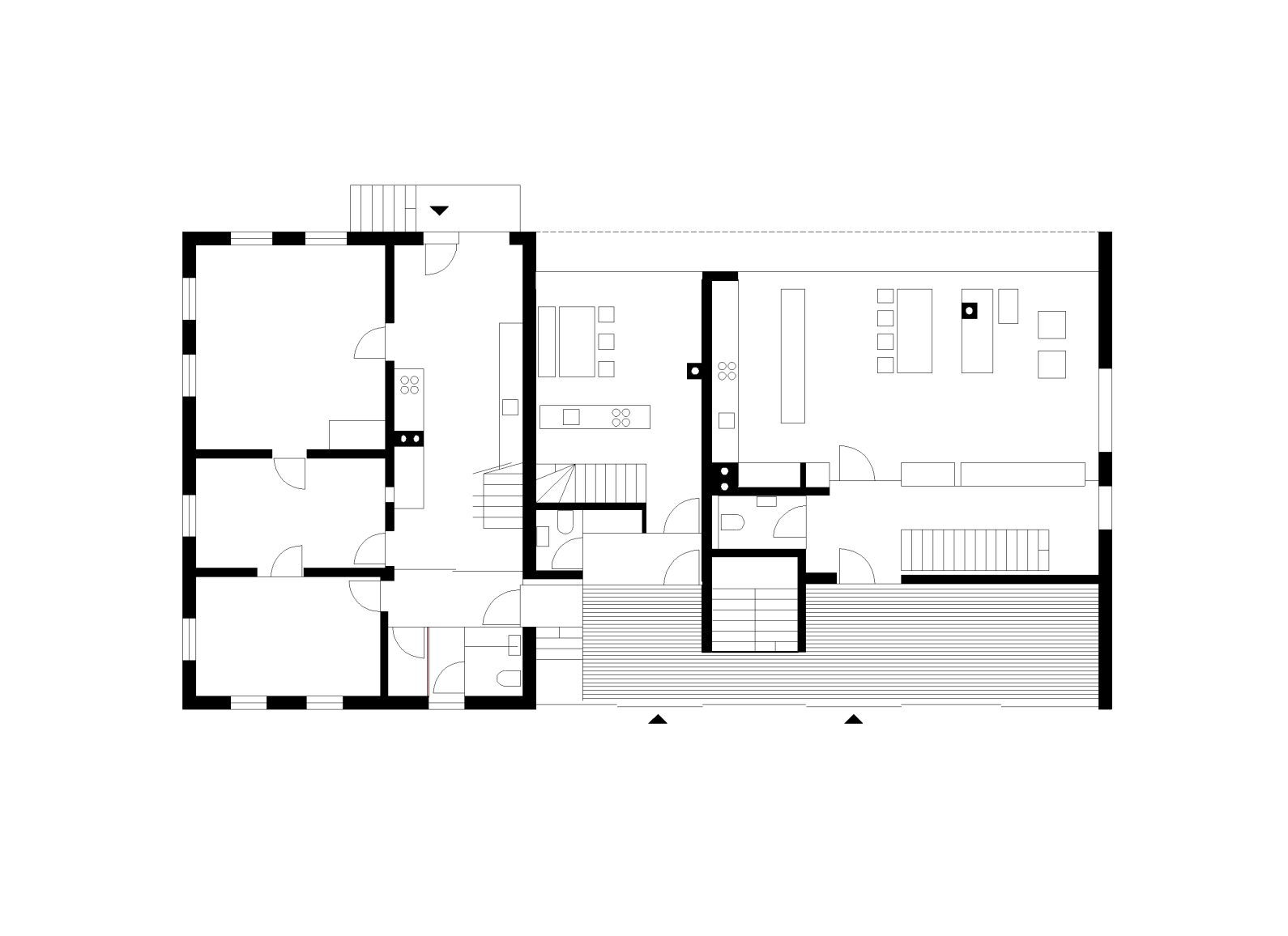
Trotz des Einbaus dreier Wohneinheiten behält das Gebäude seine Grundstruktur aus Wohnteil und geschlossenem Wirtschaftsteil. Die Erschließungsflächen werden an der Straßenseite in einer semitransparenten Raumschicht zusammengefasst, an der Südseite bildet ein verschließbarer Terrassenraum die Klammer über den ehemaligen Wirtschaftsteil.
Sanierung und Innenausbau des denkmalgeschützten Hauses erfolgten mit großem Einfühlungsvermögen und höchster handwerklicher Qualität durch Eigenleistung der Bauherren.
Netzwerk
- Auftraggeberin: privat
- Projektpartner: Zimmerei Nenning Hittisau
- Fotografie: David Schreyer