
Erneuerung Dorfsaal Thal
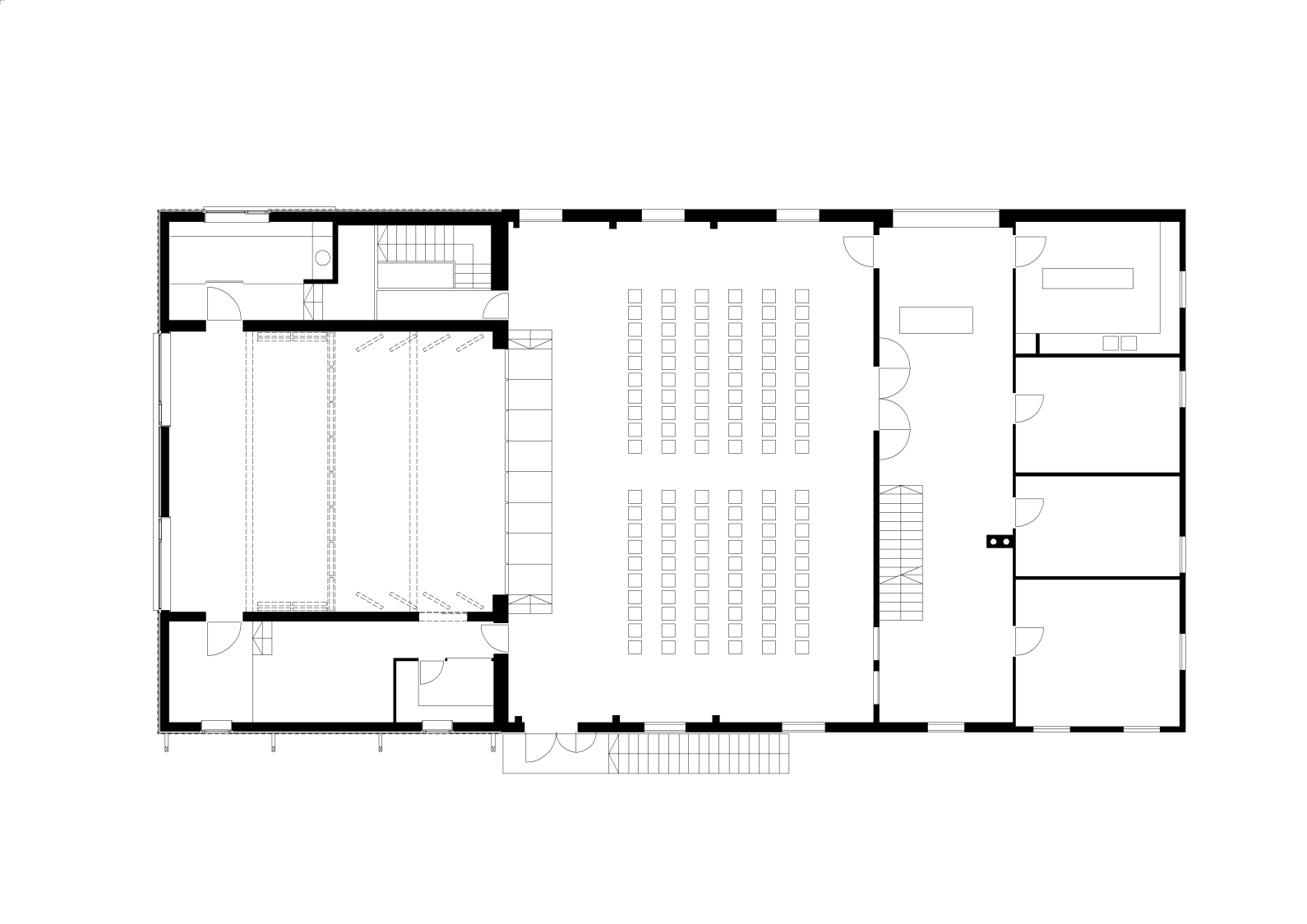
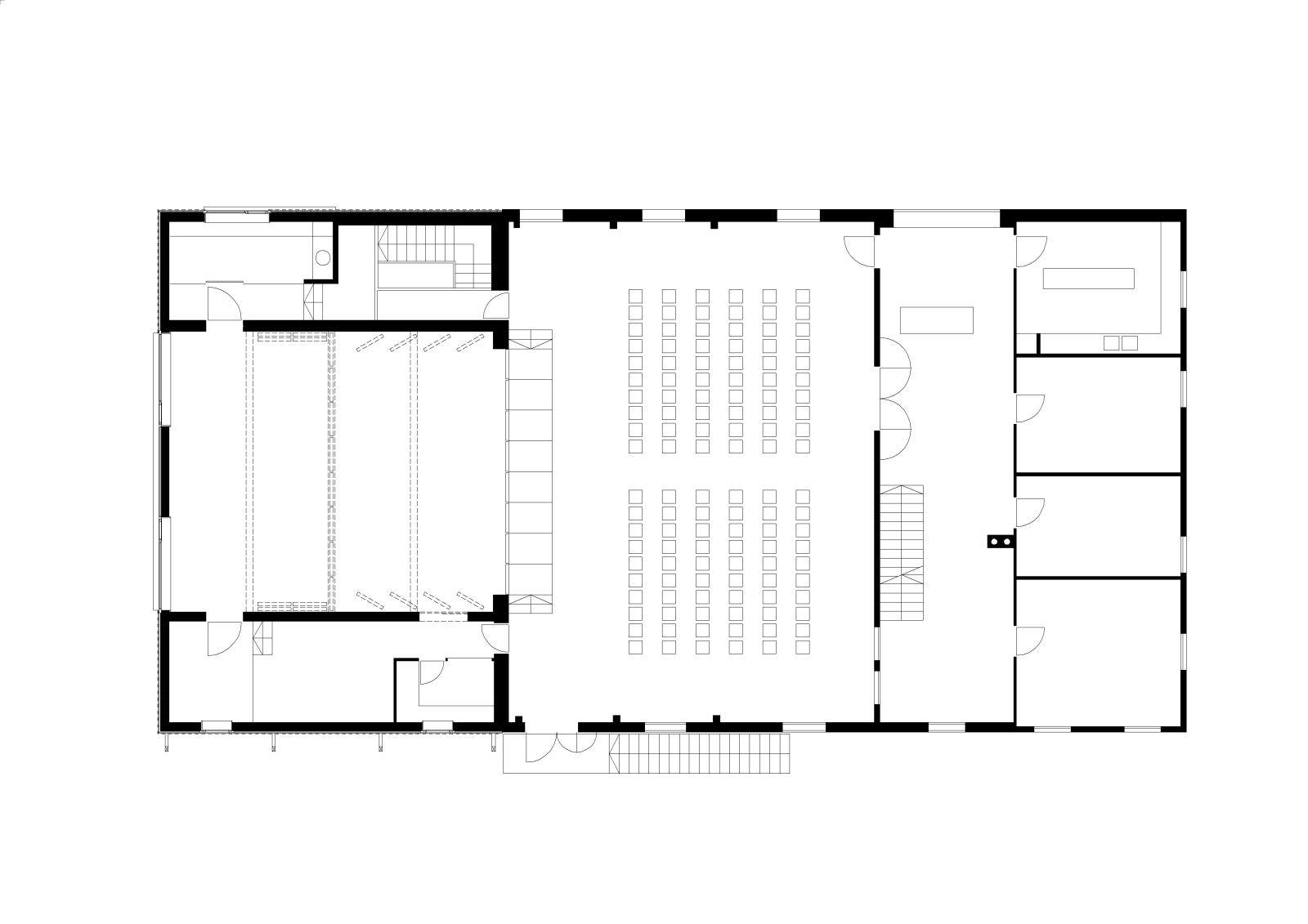
Nach der Gründung das SHV (Selbsthilfeverein Dorfgemeinschaft Thal) wurden die Gasträume und der Dorfladen der Krone Thal in Eigenleistung saniert und deren Weiterführung gesichert. Der Veranstaltungssaal im Obergeschoss war jedoch in einem desolaten Zustand und schon seit längerer Zeit ungenutzt. In der kollektiven Erinnerung des Dorfes waren der Kronesaal und die damit verbundenen Erlebnisse durchaus lebendig. Vor allem das Bedürfnis, einen Raum für die besonderen Tage und Anlässe im Dorfleben zu haben (ein Wohnzimmer für das Dorf), führten zum Entschluss den Saal zu sanieren. Eine wesentliche Aufgabe war, die Vielzahl von notwendigen Maßnahmen und Einbauten (Lüftung, Brandmeldeanlage, Fluchtwegbreiten, Treppenlift, Bühnentechnik …) so einzufügen, dass der spezifische Charakter des Saals erhalten blieb. Viel Augenmerk wurde auf die Erhaltung der alten Täferflächen und die Einbindung der neuen Elemente in die Bestandsoberflächen verwendet.
Netzwerk
- Fotografie: Ivo Vögel