Volksschule Sulzberg Thal

Sanierung und Erweiterung einer Volksschule
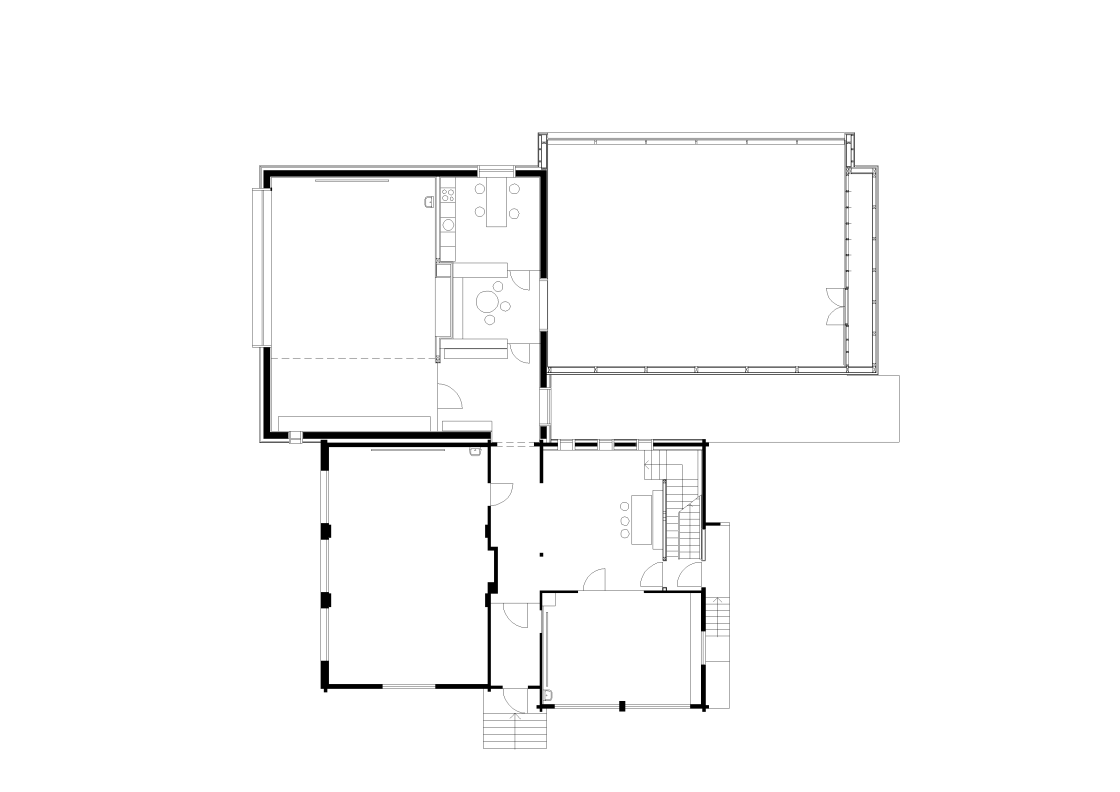
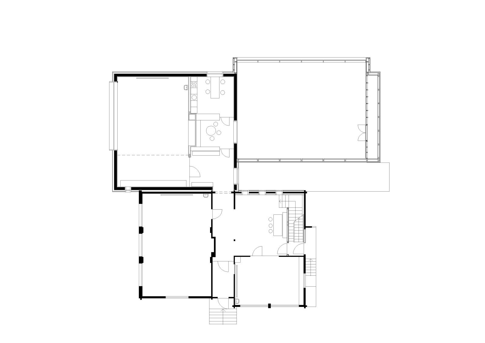
Thal (350 Einwohner, Fraktion der Gemeinde Sulzberg) liegt an den nördlichen Ausläufern des Bregenzerwaldes. Die Erhaltung der Schule im Ort war das übergeordnete Ziel dieses Projektes. Das alte Schulhaus aus dem Jahr 1936 und ein um 1980 entstandener Zubau sollten durch einen Turnsaal und Räume für eine Kindergartengruppe erweitert werden. Der Entwurf verbindet die beiden Zubauphasen zu einem kubischen Baukörper der sich, klar ablesbar, neben das alte Schulhaus stellt. Räumliche Vielfalt, Transparenz und die Kombination alter und neuer Holzoberflächen lassen eine, für die Nutzung als Volksschule und Kindergarten, angestrebte Wohnlichkeit entstehen.
Netzwerk
- Projektpartner: Roland Gnaiger
- Fotografie: Iganazio Martinez