
Wohnanlage für Errichtergemeinschaft
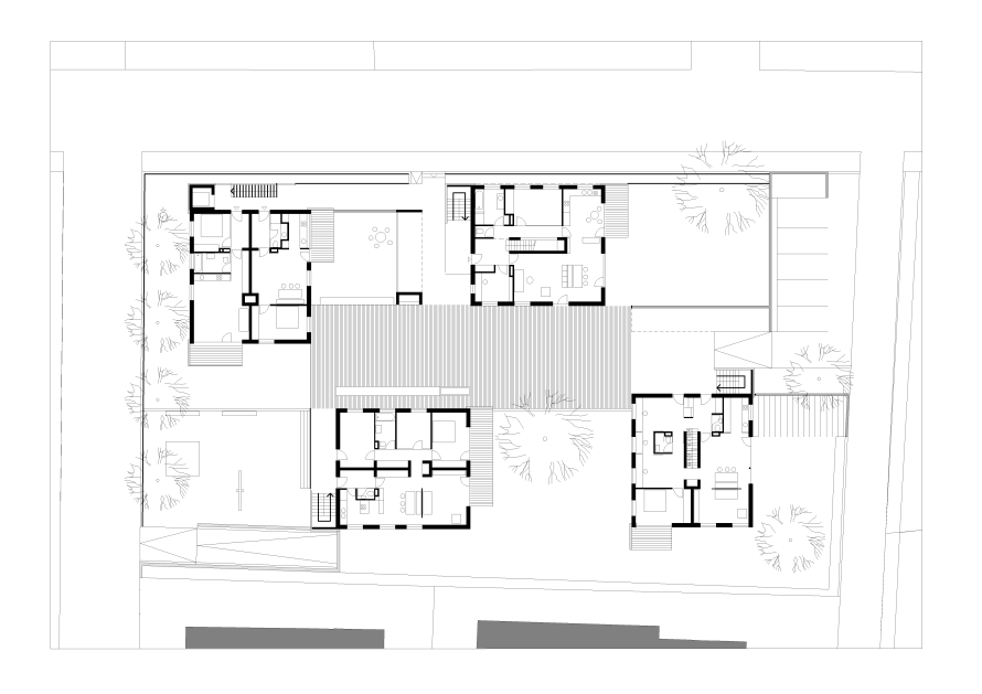
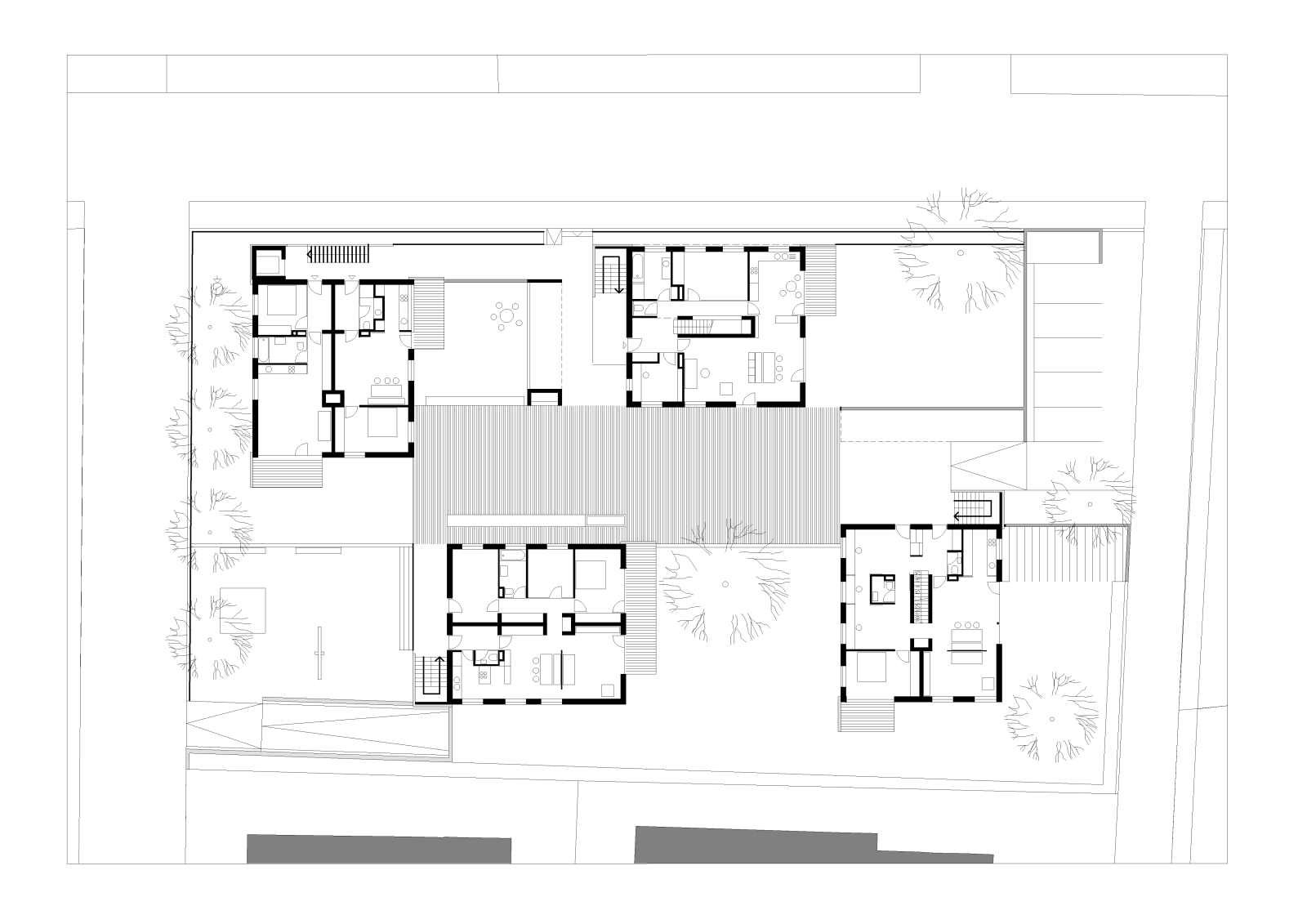
Ein zentral gelegenes Grundstück in Bregenz und eine Errichtergemeinschaft mit ca. zehn Familien waren die Ausgangslage für diese Wohnanlage. In einem intensiven Entwicklungsprozess wurde ein Projekt erarbeitet, dass auf aktuelle Fragen im Wohnbau antworten sollte: Die im Vergleich zur Lebensdauer eines Gebäudes kurzen Phasen konstanter Nutzung verlangen nach einem flexiblen Grundriss-System. Familien wachsen und schrumpfen innerhalb einer relativ kurzen Zeit. Füllen zuerst die Kinder alle Zimmer, wird nach deren Auszug die Wohnung rasch leer und ein abtrennbares Apartment wäre optimal.
Ausgehend von einer Grundeinheit mit 50 m² (= ½ Geschoß) wurden die Installationsschächte, die Lage der Fenster und das Erschließungs-System festgelegt. Jedes der vier Häuser kann zwischen 2 (2 × 150 m²) und 6 (6 × 50 m²) Wohnungen aufnehmen, Grundinstallationen und Eingänge sind für alle angestrebten Nutzungsvarianten vorbereitet.
Die Bebauung nimmt die für die Umgebung typische Gebäudegröße auf und platziert die vier Baukörper um einen gemeinsamen Innenhof.
Netzwerk
- Projektpartner: Roland Gnaiger, Peter Wimmer, Elmar Gmeiner
- Fotografie: Nina Baisch